CIAO! Ho acquistato un appartamento che prenderò in consegna nel terzo trimestre del prossimo anno. Sto cambiando inquilino.

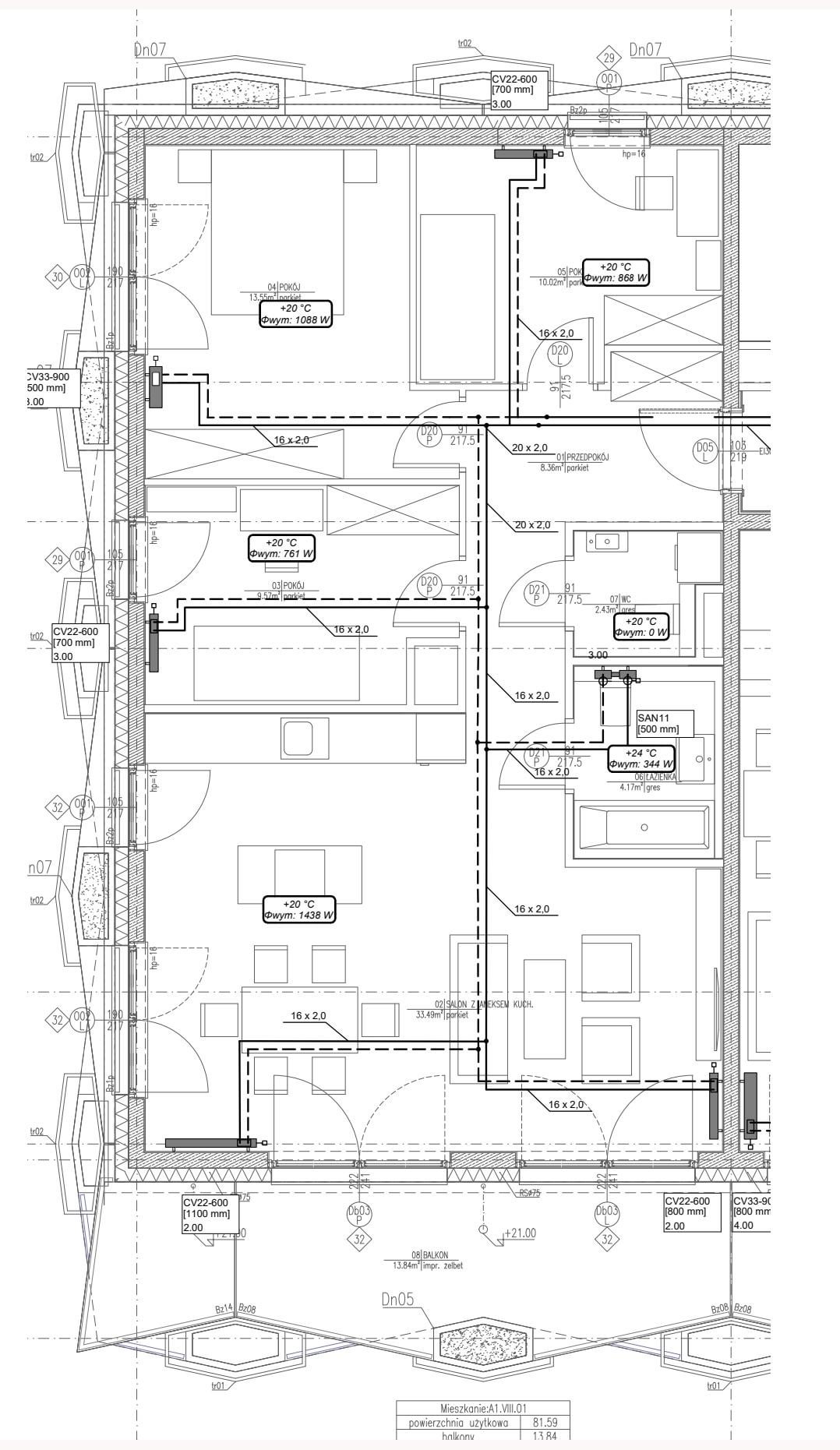
Al posto dei termosifoni ho intenzione di installare il riscaldamento elettrico a pavimento in tutto l’appartamento con una superficie di ~82 m².

Vorrei chiedere: 1) Quali costi posso aspettarmi per il riscaldamento elettrico a pavimento (materiali + installazione)?

2) Cosa scegliere per la migliore conduzione del calore (tappetino riscaldante, pellicole, cavi)?

3) Piastrelle, pannelli o legno?

A cosa dovresti prestare particolare attenzione durante la pianificazione e l’installazione, per renderlo efficace, durevole e non generare bollette elettriche elevate?

Qualcuno potrebbe dirmi più o meno quali costi elettrici posso aspettarmi con questo tipo di riscaldamento?

Purtroppo non posso utilizzare il riscaldamento a pavimento ad acqua.

Non sono molto esperto di questo argomento, sarei grato per il tuo consiglio 🙂

riscaldamento a pavimento

https://i.redd.it/1qgs2wr35rfg1.jpeg

di DesertMeerkat

Share.

11 commenti

  1. bablador on

    Zapytaj Gemini albo zapłać profesjonaliście. Wątpię, żebyś dostał tutaj wyczerpującą odpowiedź

  2. Apart-Eggplant7102 on

    chcesz ogrzewać całe mieszkanie prądem? Wydaje mi się że koszty będą ogromne. Jak juz bardzo nie chcesz widzieć kaloryferów, mozesz pokusić sie o kaloryfery ukryte w podłodze.

  3. Mieć dostęp do ogrzewania miejskiego a grzać prądem? Trochę jak postawić w mieszkaniu kozę i palić banknotami no ale kto bogatemu zabroni jednego i drugiego.

  4. A nie będziesz musiał potem dopłacać co sezon? Przecież na licznikach będzie widać, że “nie grzejesz”.

  5. justanearthling on

    Ja bym sprawdził czy nie da się wpiąć podłogówki w miejskie bo gdzieś to widziałem albo słyszałem.

  6. PanBorek on

    Raczej mało opłacalne rozwiązanie… proponuję matę grzewczą w łazience pod płytkami i będzie lepszy komfort

  7. mattimyck on

    Jeśli nie masz własnej, dużej fotowoltaiki z magazynem energii to nie rób tego. Koszty będą ogromne, w okresie grzewczym ponad 3 tys miesięcznie.

  8. FinchieBirb on

    Lepiej zrób sobie frezowane ogrzewanie podłogowe. Mam w mieszkaniu w bloku, nic nie trzeba było robić na etapie zmian lokatorskich.

  9. MrPigeon99 on

    Czemu nie możesz zastosować wodnego ogrzewania podłogowego?

  10. kolosmenus on

    Takie ogrzewanie będzie generowało wysokie rachunki za prąd i tego nie unikniesz. To jest dosłownie najdroższy możliwy sposób ogrzewania.

  11. Z informacji, które na szybko znalazłem (głównie anegdotyczne dane). Maty zużywają ok. 3x więcej prądu niż pompa ciepła. Pompa ciepła w eksploatacji jest o połowę tańsza niż miejskie ogrzewanie. Czyli eksploatacja będzie 1,5x droższa niż cieplo miejskie? Niby nie tak źle. Tylko, że dopłacisz jeszcze za instalację i ja nie jestem przekonany czy za ogrzewanie miejskie nie będziesz płacił, bo są jakieś mechanizmy solidarnościowe (bo grzeją Cię sąsiedzi z mieszkań obok).

    Ogrzewanie prądem ma sens w nowym budownictwie, dobrze ocieplonym. Plusem mat, oprócz wygody użytkowania, jest niższy koszt inicjalny. Tylko, że Ty CO i tak masz już w cenie mieszkania, więc w tym wypadku to tak średnio opłacalne. Chyba, że chodzi Ci tylko o komfort, to go for it. 

Leave A Reply